Opened in 1974, the Kellogg Creek Water Resource Recovery Facility (WRRF) plays an important role in serving the Clackamas Water Environment Services (WES) community. It treats wastewater from Happy Valley, Johnson City, Milwaukie, and unincorporated areas of Clackamas County. Each day, the facility cleans nearly 7 million gallons of wastewater before releasing it into the Willamette River.
After 50 years of service, it's time for much-needed updates to the facility's administration building to better serve current and future needs. The project will also move some staff facilities into the administration building, which will create space inside the main plant for future improvements to wastewater treatment.
Construction began in April 2026, with work expected to last about 10 months.
Planned upgrades include:
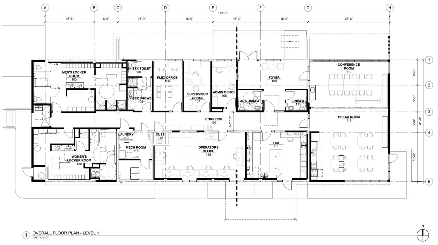
- Moving locker rooms and the employee lunchroom to the administration building
- Providing adequate locker room facilities for all staff
- Adding all-gender restrooms
- Creating a community room with space for up to 25 people
- Reconfiguring office and lab spaces to support modern operations
- Updating fire, security, and network systems to modern standards
- Updating facilities to meet current accessibility standards
In recognition of its excellence in plant operations and permit compliance, the Kellogg Creek WRRF received the Peak Performance Awards from the National Association of Clean Water Agencies (NACWA) in 2021, 2022, and 2023.
Drawings showing the new floor plan
Translate




