Middle Interceptor Project Overview
- Owner – Clackamas Water Environment Services
- Design Engineer – Carollo Engineers
- Construction Manager – AKS
System Overview
Clackamas Area Interceptor Improvements Project (CAIIP) includes 5 miles of pipe and capacity upgrades which are needed at varying timeframes

Map showing the path of the entire interceptor project
Middle Interceptor Project Overview
- Approximately 12,400 linear feet of 42-inch to 48-inch fiberglass reinforced polymer mortar pipe (FRPMP)
- Project will have Fiberglass manholes
- Two sliplining segments (approx. 1,200 linear feet total)

Map showing the Middle Interceptor route, primarily down Highway 212
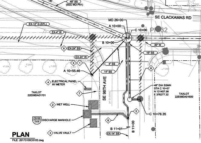
Two Force Main Connection Locations
Camp Withycombe connection
- New 4" and 15" PVC SDR35, 14" C900 PVC piping
- Abandonment of the existing Withycombe Pump Station

Diagram of the force main connection near Camp Withycombe
Clackamas Industrial Area
- 90 linear feet of 10" C900 PVC pipe

Diagram of the force main connection for the Clackamas Industrial Area
Highway 212 Traffic Control Requirements
- Approximately 9,200 linear feet of alignment within Highway 212 in ODOT Right of Way
- Alignment located in southernmost travel lane (eastbound travel lane)
- Days/Hours Allowed to Work: 8:00 PM to 5:00 AM each night (7 days a week). All lanes must be open from 5:00 AM to 8:00 PM.
- Minimum Lanes Open: Eastbound traffic reduced to one lane
Diagram illustrating two-lane and median closure

Diagram illustrating two-lane and median closure
Property Owner Coordination
- North Clackamas School District: Work must occur between July 1 and August 31
- Camp Withycombe: No work on Saturdays, Sundays, or federal holidays
- Fred Meyer: One departure lane and one inbound lane must always be open
Bids will be based on this information; Contractor can negotiate other arrangements with individual property owners once under contract

Map showing locations of Camp Withycombe, North Clackamas School District, and Fred Meyer
Permitting
- WES in process of obtaining ODOT Utility Permit
- WES to apply for Clackamas County Utility Permit
- Additional permits needed (from the Contractor):
- Clackamas County Grading Permit
- Clackamas County Right of Way Permits (road closures)
Dewatering
Geotechnical Data Report in Appendix includes groundwater information
- Exploration ID > B-052
- Top of Borehole Elevation (feet) > 115.0
- Date of Groundwater Minimums and Maximums > 10/10/2023, 10/28/2023
- Depth of Groundwater (feet below ground surface) > 10.6, 9.1
- Elevation of Groundwater (feet) > 104.4, 105.9
Approximate depth of trench: 14' - 28'
Abandonment, Lateral Connections, & Bypass Pumping
- Approximately 2,300 linear feet of alignment is removed and replaced, 10,100 linear feet of alignment is installed parallel and abandoned existing interceptor.
- Existing service connections to interceptor to be reconnected or extended
- Anticipated flows in existing interceptor:
- Dry Weather: 3.0 million gallons per day
- Wet Weather: 10.0 million gallons per day

Diagram illustrating new interceptor and existing interceptor to be abandoned
Required Qualifications
- Bidder's proposed superintendent has supervised construction of at least 1 mile of 36-inch diameter or larger circular pipe sewer pipe in the last 10 years.
- The Bidder's proposed superintendent has supervised construction of at least one project with not less than 500 linear feet of fiberglass reinforced polymer mortar pipe.
- The Bidder has constructed at least one pipeline project with a total construction cost of $10,000,000 or more in the last 10 years or performed as a sub-contractor with a sub-contract cost of at least $10,000,000. To be considered a pipeline project, the pipeline construction cost must be at least half of the total construction cost.
Bidding Information
- Anticipated date of advertisement: May 2026
- Engineer's Estimate: $26.8 Million
- Project receiving State Revolving Fund funds
- No mandatory pre-bid conference, optional pre-bid conference to be held
Translate




